Hannath

35 & 35a - 35c Upper English Street Armagh, BT61 7BA

4 Bed House For Sale

£260,000

Print additional images & map (disable to save ink)

Photo 1 of 35 & 35a - 35c Upper English Street, Armagh

Telephone:

028 3839 9911

View Online:

www.hannath.com/994135

Key Information

Address 35 & 35a - 35c Upper English Street Armagh, BT61 7BA
Price Last listed at Offers around £260,000
Style House
Bedrooms 4
Receptions 3
Bathrooms 3
EPC Rating G10
Status Sale Agreed

Features

  • Excellent Investment Opportunity
  • The Subject Premises Comprises Three Fully Let Apartments & a Butchers
  • Potential Rental income of £31,440 Per Annum
  • Potentially 11% Gross Yield
  • Prominent Location within Town Centre

Additional Information

Hannath Estate Agents is thrilled to present a fantastic investment prospect situated on Upper English Street, Armagh. This property offers a unique mix of commercial and residential potential, boasting a ground-floor retail unit ideally equipped and currently operating as a butcher shop. Above, residing on the first and second floors, are three well-appointed apartments, presenting immediate rental income opportunities. Strategically positioned on the highly sought-after Upper English Street, the property benefits from significant foot traffic and prominent frontage, ensuring maximum visibility and attracting both potential tenants and customers alike. This is a rare chance to acquire a versatile property with established income streams in a prime Armagh location.

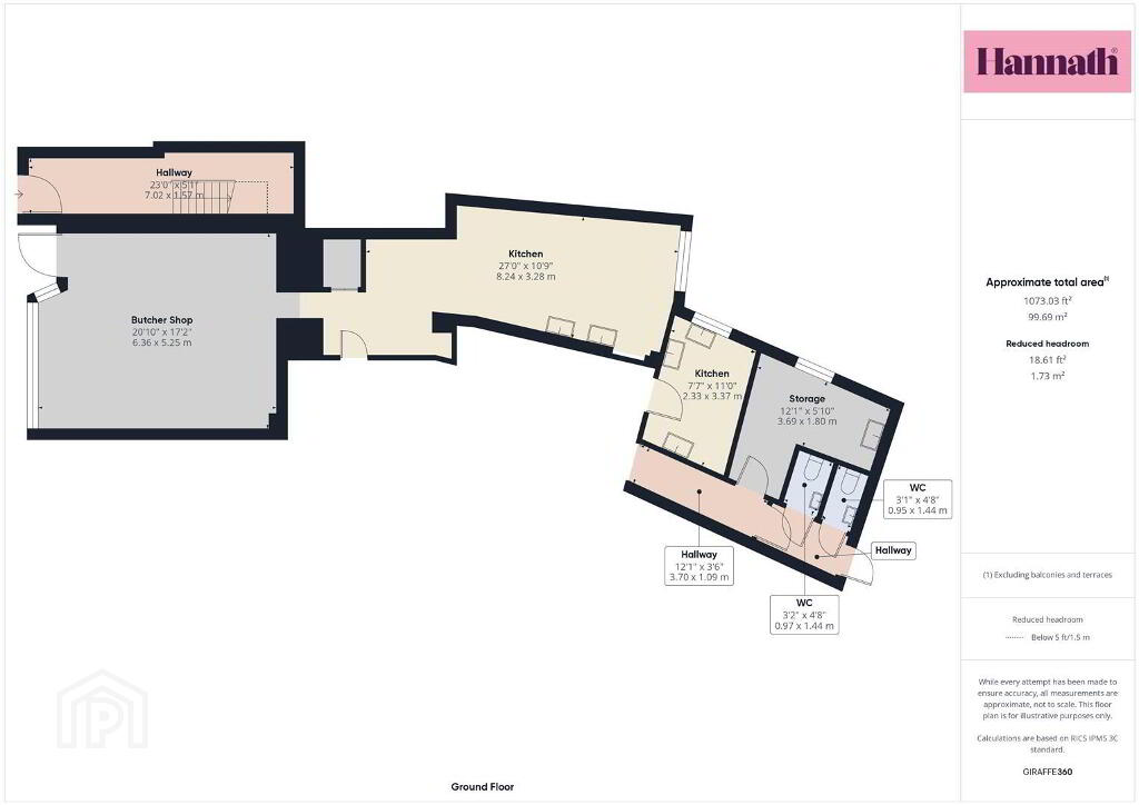
Butcher Shop 20' 10'' x 17' 2'' (6.35m x 5.23m)
Tiled.
Kitchen 27' 0'' x 10' 9'' (8.22m x 3.27m)
Tiled.
Kitchen 7' 7'' x 11' 0'' (2.31m x 3.35m)
Tiled.
Storage 12' 1'' x 5' 10'' (3.68m x 1.78m)
Tiled.
Hallway 12' 1'' x 3' 6'' (3.68m x 1.07m)
Tiled.
WC 3' 2'' x 4' 8'' (0.96m x 1.42m)
Tiled.
WC 3' 1'' x 4' 8'' (0.94m x 1.42m)
Tiled.
Hallway 23' 0'' x 5' 1'' (7.01m x 1.55m)
Tiled.
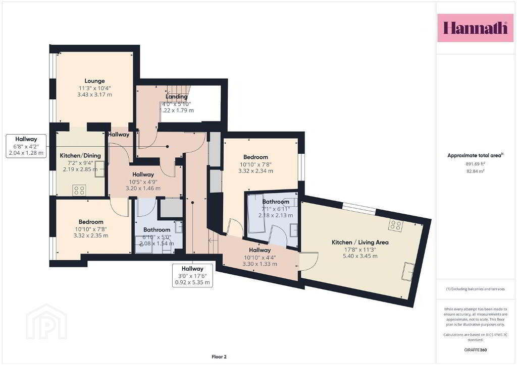
Landing 4' 3'' x 5' 8'' (1.29m x 1.73m)
Carpet.
Lounge/Dining 10' 7'' x 17' 6'' (3.22m x 5.33m)
Radiator. Carpet.
Kitchen 6' 9'' x 11' 0'' (2.06m x 3.35m)
High & low units.
Master Bedroom 10' 11'' x 14' 6'' (3.32m x 4.42m)
Radiator. Carpet.
Bedroom 2 9' 2'' x 11' 3'' (2.79m x 3.43m)
Radiator. Carpet.
Bathroom 7' 5'' x 6' 11'' (2.26m x 2.11m)
Three piece suite.
Landing 4' 0'' x 5' 10'' (1.22m x 1.78m)
Radiator. Carpet.
Hallway 10' 5'' x 4' 9'' (3.17m x 1.45m)
Radiator. Carpet.
Lounge 11' 3'' x 10' 4'' (3.43m x 3.15m)
Radiator. Carpet.
Kitchen/Dining 7' 2'' x 9' 4'' (2.18m x 2.84m)
High & low units.
Bedroom 10' 10'' x 7' 8'' (3.30m x 2.34m)
Radiator. Carpet.
Bathroom 6' 10'' x 5' 0'' (2.08m x 1.52m)
Three piece suite.
Hallway 3' 0'' x 17' 6'' (0.91m x 5.33m)
Radiator. Carpet.
Kitchen 17' 8'' x 11' 3'' (5.38m x 3.43m)
High & low units.
Bedroom. 10' 10'' x 7' 8'' (3.30m x 2.34m)
Radiator. Carpet.
Bathroom 7' 1'' x 6' 11'' (2.16m x 2.11m)
Three piece suite.

Disclaimer

These particulars are given on the understanding that they will not be construed as part of a contract, conveyance, or lease. None of the statements contained in these particulars are to be relied upon as statements or representations of fact.

Whilst every care is taken in compiling the information, we can give no guarantee as to the accuracy thereof.

Any floor plans and measurements are approximate and shown are for illustrative purposes only.

  • Hannath

    Hannath

    028 3839 9911

Photo Gallery

Photo 1 of 35 & 35a - 35c Upper English Street, Armagh Photo 2 of 35 & 35a - 35c Upper English Street, Armagh Photo 3 of 35 & 35a - 35c Upper English Street, Armagh Photo 4 of 35 & 35a - 35c Upper English Street, Armagh Photo 5 of 35 & 35a - 35c Upper English Street, Armagh Photo 6 of 35 & 35a - 35c Upper English Street, Armagh Photo 7 of 35 & 35a - 35c Upper English Street, Armagh Photo 8 of 35 & 35a - 35c Upper English Street, Armagh Floor Plan

Location

Visit www.hannath.com for further details.