Hannath

45 William Street Portadown, BT62 3NX

Commercial Property For Sale

Asking price £100,000

Print additional images & map (disable to save ink)

Front (Exterior)

Telephone:

028 3839 9911

View Online:

www.hannath.com/1068695

Key Information

Address 45 William Street Portadown, BT62 3NX
Price Asking price £100,000
Style Commercial Property
Status For sale

Features

  • Prime town centre location
  • Converted residential to commercial
  • Currently a dentist practice
  • Commercial unit on William St
  • Ideal for business use
  • Central Portadown location
  • Spacious interior layout
  • Close to local amenities
  • Viewing recommended

Additional Information

We are pleased to present an exceptional opportunity to acquire a commercial unit located on William Street in the heart of Portadown. This property has been thoughtfully converted from a residential space to a functional commercial unit, currently serving as a dentist practice.

Situated in an ideal location within Portadown town centre, this property benefits from high foot traffic and excellent visibility, making it a prime spot for various business ventures. The conversion has maintained the character of the original building while providing a modern space suitable for commercial use.

With its strategic position, this unit offers great potential for growth and success in a vibrant community. Whether you are looking to invest in a thriving business or seeking a new location for your enterprise, this property presents a unique opportunity to establish yourself in a bustling area.

Do not miss the chance to explore the possibilities that this commercial unit on William Street has to offer.

Rates: Interested parties to enquire through Land and Property Service (LPS)

Viewings: Strictly appointment only. Contact Hannath Estate Agents on 02838 399911
  • Hannath

    Hannath

    028 3839 9911

Photo Gallery

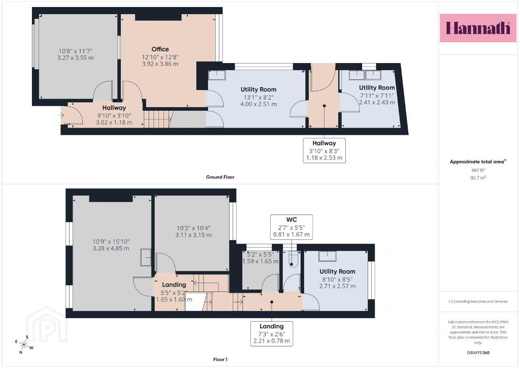
Front (Exterior) Front (Exterior) Hallway Reception Room Reception Room Reception Room Garage Generic or Other Spaces CAM02081G0-PR0910-STILL007.jpg Utility Room Utility Room Study Kitchen WC Floor Plan Floor Plan Floor Plan

Location

Visit www.hannath.com for further details.