Hilmark Homes

The Bellamont (a) Bellfield Park Portadown

4 Bed Detached House For Sale

Price £340,000

Print additional images & map (disable to save ink)

Photo 1 of The Bellamont (a), Bellfield Park, Portadown

View Online:

www.hannath.com/1051048

Show Home Open Viewing: By appointment only

Four bedroom detached

Key Information

Address The Bellamont (a) Bellfield Park Portadown
Price £340,000
Style Detached House
Bedrooms 4
Receptions 2
Bathrooms 3
Heating Gas
Size 1,434 sq. feet
Status For sale

Property Units

Unit Name Price Size
Site 4 Bellfield Park £340,000 1,434 sq. feet

Additional Information

THE BELLAMONT (A)

 

4   B E D R O O M   D E TA C H E D   H O M E

SITE Nos. 3, 50(H)TOTAL FLOOR AREA 1434 sq. ft. approx

with optional garden room 1543 sq. ft. approx.

 

G R O U N D  F L O O R  Ft/Inch (Metres)

Entrance Hall

WC

Lounge: 21’4” x 11’2”  (6.48m x 3.40m)

Kitchen | Dining: 16’1” x 13’0” (4.90m x 3.95m)

Family: 13’7” x 6’2”  (4.13m x 1.88m)

Utility

Optional Garden Room 10’4” x 10’0” 3.12 x 3.04

 

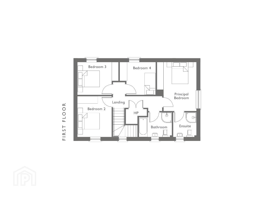
F I R S T   F L O O R  Ft/Inch (Metres)

Principal Bedroom: 14’0” x 11’2”  (4.23m x 3.40m)

Ensuite

Bedroom 2: 11’7” x 9’8”  (3.52m x 2.95m)

Bedroom 3: 11’7” x 9’3”  (3.53m x 2.83m)

Bedroom 4: 10’3” x 9’3”  (3.12 x 2.83m)

Bathroom

 

SPECIFICATION

KITCHEN & UTILITY

High quality Kitchen & Utility units with soft close doors & drawers

Choice of Kitchen & Utility door styles, colours and door handles

Range of quartz worktops with undermounted sink in Kitchen & laminate worktop in Utility with stainless steel sink unit

Choice of feature ceramic tiling between Kitchen units

Porcelain floor tiling

Integrated appliances in Kitchen to include 5 ring gas hob, extractor fan, electric oven, fridge freezer and dishwasher

Electrical and plumbing provision for washing machine and tumble dryer in the

Utility LED under lighting to Kitchen units

Recessed LED down lighting to ceiling in Kitchen and pendant light fitting in the Utility

 

BATHROOM, EN SUITE & WC

Contemporary white sanitary ware to include back to wall toilet throughout & low-profile shower trays with chrome fittings

Separate fully tiled shower enclosure with dual rain drencher shower head in Bathroom & En Suite

Chrome towel radiators in Bathroom & En Suite

Choice of porcelain floor tiling and partial wall tiling in Bathroom, En Suite & WC

Recessed LED down lighting to ceiling in Bathroom & En Suite Pendant light fitting in WC

 

INTERNAL FEATURES

Internal decor - walls painted from a palette of selected colours (1 colour throughout), ceiling painted as standard

Choice of stove with granite or slate hearth

Mains supply of smoke & carbon monoxide detectors with battery backup

Moulded skirting & architraves with painted finish

Solid Mexicano internal doors with painted finish and quality contemporary ironmongery

Carpets to Lounge, stairs, landing & bedrooms with high quality underlay

Porcelain tiling in Hallway

Comprehensive range of electric sockets, switches, TV & telephone points prewired for BT Fibre optic

Wiring for future satellite point

Energy efficient Gas fired central heating

Integral security alarm system Energy efficient fittings/bulbs to all rooms

 

EXTERNAL FEATURES

PV solar panels fitted as standard Timber frame construction

Front gardens to be turfed Rear garden to be rotovated and seeded in next planting season (weather dependent)

Bitmac driveway

Tobermore pavers to front of house & contemporary stylish paving to the rear

uPVC Anthracite framed double glazed windows and uPVC rear doors

Composite contemporary front door with secure multi locking system

External socket

Outside water tap

External lighting to front and rear doors

WARRANTY

10 year structural warranty provided by Global Homes

 

MANAGEMENT COMPANY

A Management Company will be set up by the Developer, and each homeowner will be a member. An annual maintenance fee will be payable to the Management Company to allow for maintenance and insurance of communal amenity areas.

 

S O L A R  E N E R G Y

Energy savings through SOLAR TECHNOLOGY

Every home at Bellfield Park will have solar panels fitted as standard. Solar panels capture the sun’s energy and convert it in to free, renewable, clean electricity for your home. The placement of the panels will be tailored to the orientation of each house, ensuring maximum energy output and savings, whilst also reducing your carbon footprint.

  • Hannath

    Hilmark Homes

    028 3839 9911

  • Hilmark Homes

    Hilmark Homes

Photo Gallery

Photo 1 of The Bellamont (a), Bellfield Park, Portadown Floorplan 1 of The Bellamont (a), Bellfield Park, Portadown Floorplan 2 of The Bellamont (a), Bellfield Park, Portadown

Location

Visit www.hannath.com for further details.