Hannath

7 Knocknashane Park, Lurgan, Craigavon, BT66 7XY

3 Bed Semi-detached House For Sale

£172,500

Print additional images & map (disable to save ink)

Photo 1 of 7 Knocknashane Park, Lurgan, Craigavon

Telephone:

028 3839 9911

View Online:

www.hannath.com/1013794

Key Information

Address 7 Knocknashane Park, Lurgan, Craigavon, BT66 7XY
Price Last listed at Asking price £172,500
Style Semi-detached House
Bedrooms 3
Receptions 1
Bathrooms 2
Heating Oil
EPC Rating C76/C76
Status Sale Agreed

Features

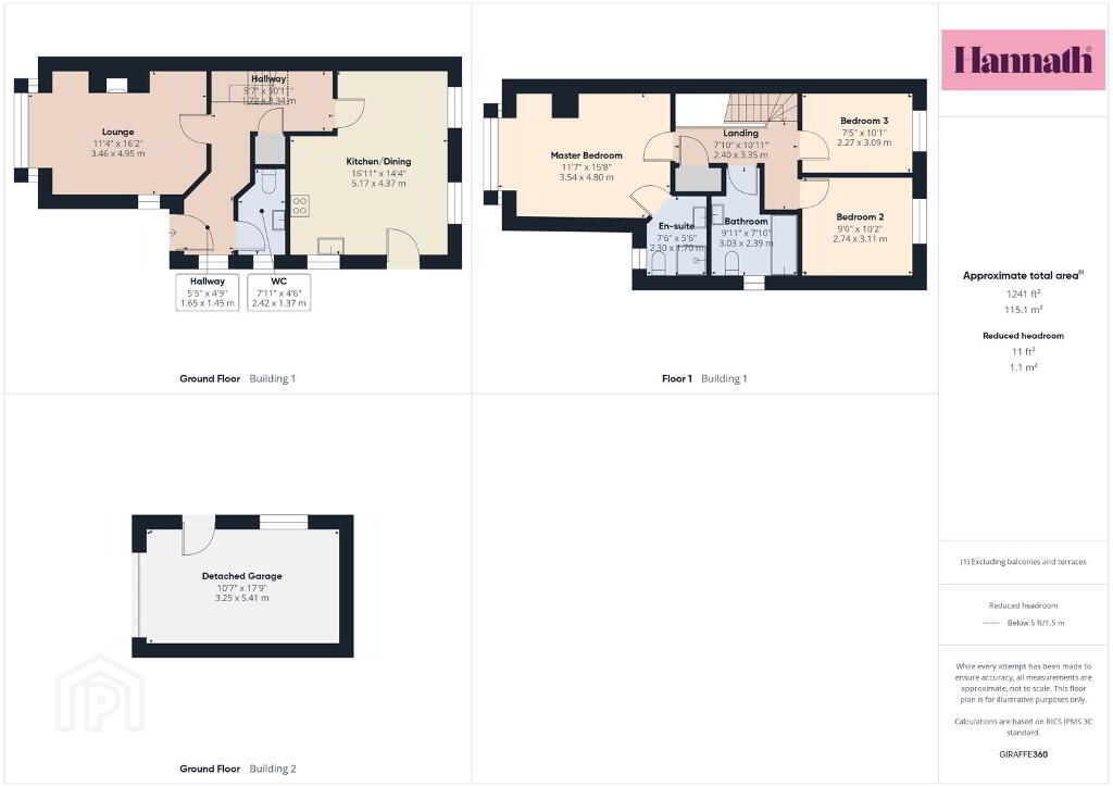
  • Spacious Three Bedroom Semi Detached Family Home with a Detached Garage
  • Suitable for Co-ownership
  • Large Lounge Featuring an Open Fireplace & Bay Window
  • Kitchen/Dining Area with an Array of Fitted Units & Integrated Appliances
  • Downstairs WC
  • Master Bedroom with an Ensuite
  • Two Further Well Proportioned Bedrooms
  • Three Piece Family Bathroom Suite
  • Detached Garage (17'9" x 10'7")
  • Fully Enclosed & Private Rear Garden

Additional Information

Hannath Estate Agents are delighted to present this three-bedroom semi-detached home with a detached garage. Upon entering, you will be greeted by a spacious lounge featuring an open fireplace and bay window, creating an inviting atmosphere ideal for hosting gatherings with family and friends. There is a kitchen and dining area, featuring high and low fitted units and a selection of integrated appliances. With a conveniently located downstairs WC.

Venturing upstairs, you will discover a master bedroom with an ensuite, two further well proportioned bedrooms and a three piece partially tiled family bathroom suite.
Hallway 1.65 x 1.45
Tiled. Radiator.
Lounge 3.46 x 4.95
Radiator. Carpet. Fireplace.
Kitchen/Dining 5.17 x 4.37
High & low units. Integrated appliances.
WC 2.42 X 1.37
Tiled.
Master Bedroom 3.54 x 4.80
Radiator. Carpet.
En-Suite 2.30 x 1.70
Tiled.
Bedroom Two 2.74 x 3.11
Radiator. Carpet.
Bedroom Three 2.27 x 3.09
Radiator. Carpet.
Bathroom 3.03 x 2.09
Three piece suite

Disclaimer

These particulars are given on the understanding that they will not be construed as part of a contract, conveyance, or lease. None of the statements contained in these particulars are to be relied upon as statements or representations of fact.

Whilst every care is taken in compiling the information, we can give no guarantee as to the accuracy thereof.

Any floor plans and measurements are approximate and shown are for illustrative purposes only.

  • Hannath

    Hannath

    028 3839 9911

Photo Gallery

Photo 1 of 7 Knocknashane Park, Lurgan, Craigavon Photo 2 of 7 Knocknashane Park, Lurgan, Craigavon Photo 3 of 7 Knocknashane Park, Lurgan, Craigavon Photo 4 of 7 Knocknashane Park, Lurgan, Craigavon Photo 5 of 7 Knocknashane Park, Lurgan, Craigavon Photo 6 of 7 Knocknashane Park, Lurgan, Craigavon Photo 7 of 7 Knocknashane Park, Lurgan, Craigavon Photo 8 of 7 Knocknashane Park, Lurgan, Craigavon Photo 9 of 7 Knocknashane Park, Lurgan, Craigavon Photo 10 of 7 Knocknashane Park, Lurgan, Craigavon Photo 11 of 7 Knocknashane Park, Lurgan, Craigavon Photo 12 of 7 Knocknashane Park, Lurgan, Craigavon Photo 13 of 7 Knocknashane Park, Lurgan, Craigavon Photo 14 of 7 Knocknashane Park, Lurgan, Craigavon Photo 15 of 7 Knocknashane Park, Lurgan, Craigavon Photo 16 of 7 Knocknashane Park, Lurgan, Craigavon Photo 17 of 7 Knocknashane Park, Lurgan, Craigavon Photo 18 of 7 Knocknashane Park, Lurgan, Craigavon Photo 19 of 7 Knocknashane Park, Lurgan, Craigavon Photo 20 of 7 Knocknashane Park, Lurgan, Craigavon Floor Plan

Location

Visit www.hannath.com for further details.